Stanhope Street For Sale For Residential

Stanhope Street
Offers over £248,000.00
  • Area
  • Rooms 4
  • Bedrooms 2
  • Bathrooms 1

Description

Leo Properties proudly presents an excellent opportunity for buyers seeking a well-maintained/presented and in good condition 2 Bedroom terrace house, situated off Orson Street/ Osborne Road in a highly popular area and prime location of North Evington, within walking distance of Spinney Hill Park, local amenities and places of worship.

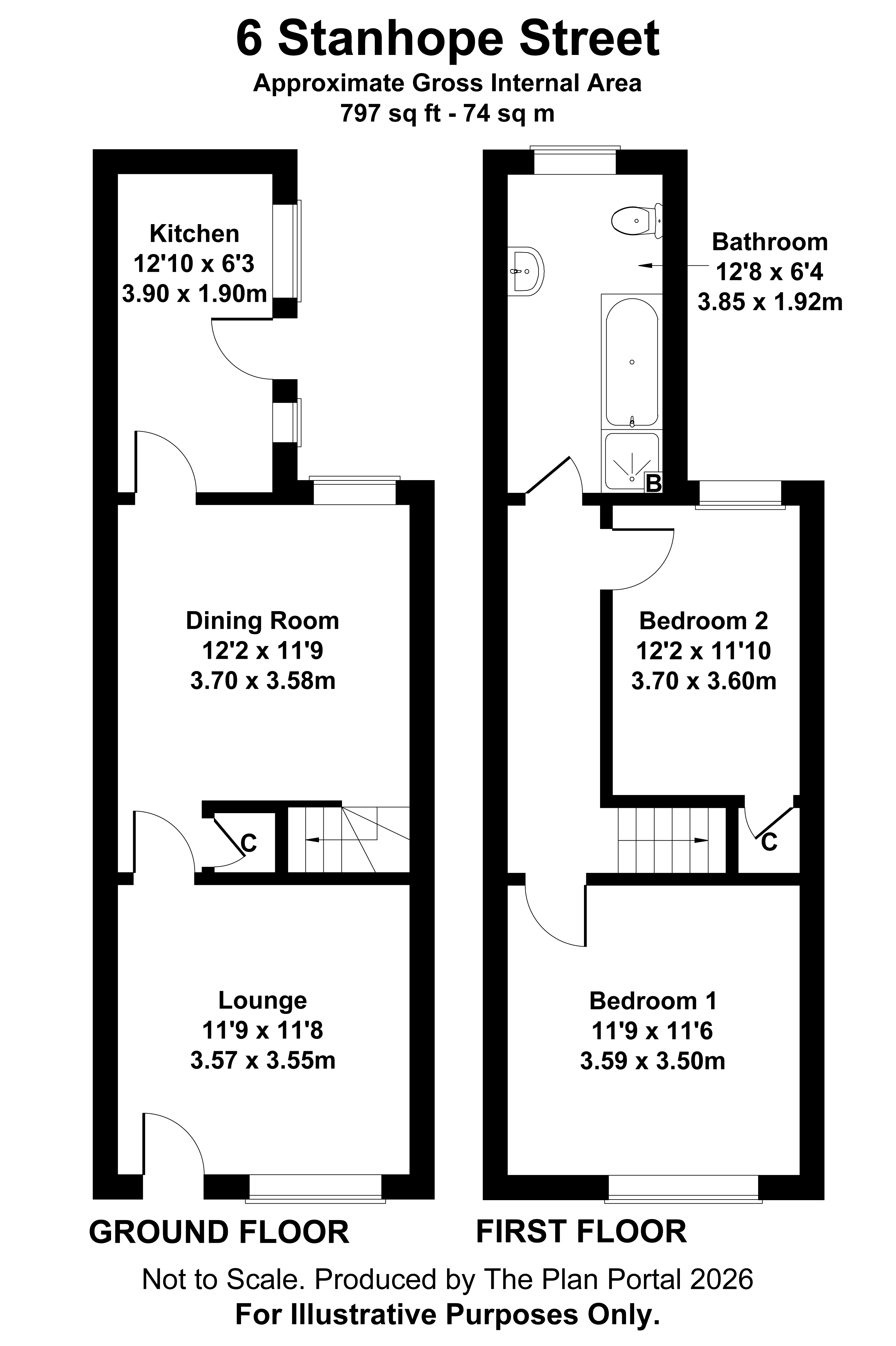
The property offers two reception rooms, a good-sized fitted Kitchen with highly desirable retro Harrod’s freestanding units, good sized low-maintenance rear yard with two store-rooms. With two bedrooms and a family bathroom on the first floor, and gas central heating with high efficiency boiler and double glazing throughout, ensuring a warm and energy efficient environment all year round. The property has recently had the benefit of a new metal consumer unit (‘18th Edition’). The roof space is insulated and boarded, provided with power and lighting and accessed with ‘pull-down’ retractable loft-ladder. This home is offered to the market with no upward chain, allowing a smooth and swift purchase process. Early Viewing is highly recommended to fully appreciate this delightful home to offer. Available in vacant position.

 

Show More

Features

  • * 2 Bedroom
  • * Terrace House
  • * 2 Reception rooms
  • * Fitted Kitchen
  • * Family bathroom
  • * Freehold
  • * Good size rear garden
  • * Double glazing
  • * Gas central heating
  • * North Evington
  • * Well-presented
  • * Nearby worship places
  • * Close to Spinney Hill School
  • * Local popular area
  • * Viewing Highly recommended
  • * Available in vacant position

Location